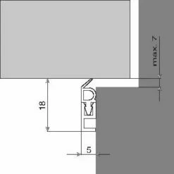
Joint intumescent composé d’une matière thermo-gonflante qui possède la propriété de gonfler sous l’effet d’une forte chaleur. Capable de combler toutes les fissures, tous les intersectrices et tous les passages d’air où les flammes et les fumées pourraient se propager.Application : obturer les passages de flammes et de fumées.Ces plaques s’expansent, sans pression, d’au moins 25 fois leurs épaisseurs initiales, à partir de 350°C après 20 minutes d’exposition.Conseil de mise en oeuvre : ces bandes rigides sont disponibles en longueurs de 1,02 ml adaptées aux hauteurs de portes standard de 2,04 ml.PVM1 du CSTB n° RA12-0135 du 17/04/2012.
Promo !
8,40 €
- Les achats sécurisés commencent par des paiements sécurisés
- Paiements sécurisés, informations personnelles sécurisées
- Garantie de retour facile et rapide
- Satisfaction garantie










Avis
Il n’y a pas encore d’avis.